Introduzione al lavoro col pacchetto InstalSystem 5
| Prodotto | InstalSystem 5 |
| Tipo di articolo | PREPARAZIONE DISEGNO |
| Contenuto attuale per la versione | IS 5.0 Beta 15.1 |
Scopo della lezione
L'articolo presenta le informazioni generali sull'ambiente di lavoro offerto dal pacchetto InstalSystem 5 e descrive i passi di base sulla progettazione con l'uso del programma.
Moduli e configurazione dei programmi richiesti
- Pacchetto InstalSystem 5 in ogni configurazione
- Connessione Internet
Passi da intraprendere
preparazione dell'ambiente di lavoro
Come ottenere l'accesso al software
All'inizio è necessario ottenere l'accesso al file d'installazione del programma ed al numero di licenza che servirà all'attivazione del pacchetto sul computer dell'utente. Nel caso della versione beta bisogna contattare la ditta InstalSoft. Dopo aver ottenuto l'accesso al file d'installazione, bisogna salvarlo sul disco locale eppoi installare il software.
Installazione, attivazione, aggiornamento
Il pacchetto richiede l'installazione sul computer dell'utente come pure l'attivazione. Per l'attivazione è obbligatoria la connessione Internet. Si raccomanda anche di aggiornare il pacchetto alla versione più nuova disponibile.
Informazioni sui cambiamenti che sono stati introdotti in versioni particolari si trovano sulla pagina Informazioni sulle pubblicazioni InstalSystem 5.
Prima dell'installazione bisogna controllare se il computer adempie ai requisiti sistemici e hardware specificati sulla pagina: Specifiche tecniche del pacchetto InstalSystem 5.
Più informazioni su questo tema: Installazione, attivazione e aggiornamento del pacchetto InstalSystem 5.
Configurazione del software
Il pacchetto InstalSystem 5può essere configurato a vari livelli, grazie cui esiste la possibilità di impostare l'applicazione ai requisiti dell'utente, aumentando così l'ergonomia del lavoro:
- Impostazione della tastiera, del mouse e del menu pop-up
- layout delle finestre (vedi il film)as
- File di modelli
- Moduli
Più informazioni su questo tema: Configurazione del software.
Apertura di un file di progetto e gestione dei progetti
Creazione di un progetto nuovo oppure apertura di un progetto esistente
- Nuovo file - durante l'apertura di un file è possibile indicare un modello da usare nel progetto e scegliere una delle versione del programma con cui si vuole lavorare sul file. Si raccomanda l'uso della versione più nuova del programma.
- File esistente - durante l'apertura di un file esistente è possibile scegliere una versione del programma per trattare il file. Ciò permette di lavorare sul progetto usando la versione del programma con cui il progetto è stato creato.
Il pacchetto InstalSystem 5 permette anche di aprire progetti creati con l'aiuto di InstalSystem 4.File:New-file-pl.png7. Nuovo file
Gestione dei file di progetto e di file aggiuntivi
- Progetti modificati di recente - la lista viene creata in modo automatico e facilita l'accesso ai file recentemente modificati nonostante la loro localizzazione. Essa è disponibile sia dal livello di Gestore: File:Recently-edited-projectd-1pl.png8. Progetti modificati di recente
sia dal livello di menu File nella finestra Editore InstalSystem.File:Recently-edited-projects-file-pl.png9. Progetti modificati di recente
Un'altra possibilità è di immettere certi progetti sempre nella parte superiore della lista nonostante la loro data di modifica. A questo servono puntine - basta cliccare una puntina
presso un dato progetto ed esso si troverà fissato nella parte superiore
. - Gestione progetti - Durante l'installazione del programma è possibile indicare la localizzazione predefinita dei progetti. Essa e tutte le sottocartelle con file sono accessibii tramite la sezione Gestione progetti nella finestra Manager InstalSystem. Si raccomanda di creare una sottocartella per ogni progetto (oggetto progettato) in cui raccogliere versioni successive del progetto in InstalSystem (file .isproj) come pure altri file, p.es. quelli che sfruttano sfondi di base. Un altro vantaggio è la visualizzazione della versione del pacchetto con cui i file .isproj sono stati elaborati. File:Project management-1pl.png10. Gestione progetti
Lavoro col progetto
Dati generali
La prima tappa del lavoro è l'impostazione dei dati generali e la verifica di setting predefiniti, che sono dati di base comuni per tutto il progetto. Questi dati possono essere modificati ad ogni momento della creazione di un progetto. La finestra Dati generali è accessibile nel listino finestre localizzato sulla barra degli strumenti. Informazioni dettagliate sullo scopo dei Dati generali da modificare, a seconda del tipo d'impianto progettato o a seconda del tipo di calcoli condotti, si trovano negli articoli descriventi particolari usi del pacchetto - vedi:USI.
- Informazioni sul progetto e scopo del progetto - permettono di completare le informazioni sul progetto come pure la scelta dello scopo giusto per il progetto realizzato.
- Cataloghi - i cataloghi accessibili nel programma sono file pronti e immodificabili coi dati degli elementi che possono essere usati durante la progettazione degli impianti. Un tipo speciale di cataloghi sono dati climatici. Grazie ai file salvati nei cataloghi, non è necessario immettere vari dati particolari riguardanti gli elementi da usare nella progettazione; basta semplicemente indicare il prodotto od il sistema da usare nel progetto, invece il programma legge tutti i dati necessari dal catalogo.
In questo luogo dei dati generali è possibile definire in modo individuale l'insieme dei cataloghi che devono essere accessibili durante la modifica degli impianti e durante la scelta degli elementi come pure durante i calcoli. A seconda della configurazione del pacchetto, saranno accessibili vari tipi e vari scopi dei cataloghi. Quelli ultimi possono essere un insieme dei dati di elementi neutrali o degli elementi di un produttore specifico. - Dati dell'edificio -permettono di definire le informazioni di base di un dato edificio nell'ambito degli impianti progettati.
Edificio ed il suo ambiente contiene le informazioni sulla localizzazione e sui dati premodificati riguardanti la struttura dell'edificio, ad es. indicazioni del carico di riscaldamento o di raffrescamento.
Piani permettono di definire o modificare la struttura dell'edificio (numero e le informazioni di base sul piano). Per ogni piano viene creato automaticamente un foglio per poter lavorare sulla vista in piano di questo piano. - Dati predefiniti degli impianti progettati - sono dati supportati per tutti gli elementi di un impainto che hanno in un dato campo di dati lo status predefinito (simbolo di un computer). Tale status possiedono gli elementi recentemente inseriti. Ad ogni fase del lavoro è possibile il cambiamento del valore predefinito - è possibile immettere, ai particolari elementi del progetto, dati specifici oppure tornare all'impostazione predefinito. Dati predefiniti sono accessibili nella finestra Dati generali in quanto alcuni set separati, ad es. Impianti di riscaldamento.
- Impostazione aspetto visuale degli elementi e parametri di modifica - il programma permette di impostare l'aspetto visuale dei disegni e della modalità di lavoro ai requisiti individuali di un dato progetto. Le impostazioni modificate possono essere usate per vari progetti, per questo motivo bisogna salvare un file con impostazioni modificate in quanto modello nuovo - vedi: File dei modelli
Componenti di base dell'ambiente di modifiche grafiche
I luoghi di base in cui i dati del progetto vengono modificate sono le finestre Modifica grafica oraz Tabella dati. La modalità d'apertura oppure i cambiamenti della loro localizzazione sullo schermo sono stati descritti in Layout delle finestre. Le funzioni più importanti sono disponibili invece mediante la barra Strumenti principali e mediante il menu pop-up con il tasto destro del mouse. La disponibilità come pure i suoi contenuti dipendono dalla località sullo schermo oppure dall'oggetto indicato.
- Modifica grafica - nella finestra della odifica grafica è possibile eseguire tutte le operazioni di modifica sugli elementi che creano la struttura dell'edificio e i sistemi progettati. è possibile utilizzare allo stesso momento due finestre della modifica grafica, in cui possono essere visualizzate varie viste del progetto. Gli elementi essenziali della finestra sono:
- Fogli di lavoro - la finestra della modifica grafica presenta un dato foglio di lavoro scelto. Nel progetto ci possono essere vari fogli di lavoro che di soltio corrispondono ai piani dell'edificio - vedi: Preparazione della struttura dell'edificio. Il cambiamento del foglio di lavoro attivo è possibile tramite la lista di scelta nell'angolo inferiore della finestra della modifica grafica
File:Drawing-sheets-png.png - Layer di modifica - sono layer di un dato foglio di lavoro. A seconda del layer attivo sono accessibili da essere modificati altri elementi del progetto. Alcuni elementi sono accessibili attraverso più layer. Il fatto quale layer è attivo ha un influsso enorme sul contenuto della barra Strumenti principali. Si può configurare la visibilità di ogni layer di modifica (ossia la visibilità degli elementi del disegno attribuitici). Le opzioni disponibili sono visibili con il tasto destro del mouse cliccato sull'etichetta del layer. Il simbolo a sinistra dell'etichetta del layer presenta l'impostazione della visibilità attuale.
File:Tap-state-pl.png - Modalità di lavoro - riguardano l'edizione della struttura dell'edificio o la modifica di un impianto. Le modalità possono essere accese / spente nell'angolo destro della finestra di modifica grafica
File:Auto-orto.png- ORTO - il lavoro nella modalità ORTO permette di mantenere l'angolo retto durante le modifiche, il che permette di introdurre linee orientate ad angolo retto rispetto ad un'asse del sistema di riferimento. Mantenendo premuto il tasto Ctrl, è possibile accendere / spegnere per un attimo la modalità ORTO, il che è molto comodo durante alcune operazioni di modifica
- GRID - la modalità GRID supporta il disegno manuale dei tubi di alimentazione come pure il disegno delle serpentine dentro la zona radiante.
- AUTO - la modalità auto rende accessibile lo snapping automatico, ossia l'attrazone delle componenti ai punti di connessione possibile come pure lo svolgimento di altre operazioni automatiche durante l'eduizione, a seconda del tipo di componente inserito o modificato come pure a seconda dei dintorni. Tenendo premuto il tasto Shift, è possibile accendere / spegnere per un attimo la modalità AUTO, il che è molto comodo durante alcune operazioni di modifica.
- La finestra di modifica dei parametri di lavoro delle modalità ORTO e AUTO - permette di impostare le modalità di lavoro ai requisiti individuali. La finestra può essere visualizzata nell'angolo destro della finestra di modifica grafica.

- Nell'angolo destro inferiore della finestra Modifica grafica si trova il tasto permettente di fare un'anteprima di tutto il progetto
. - Nell'angolo sinistro superiore della finestra Modifica grafica si trova il tasto permettente di cambiare scala di una data vista
.
- Fogli di lavoro - la finestra della modifica grafica presenta un dato foglio di lavoro scelto. Nel progetto ci possono essere vari fogli di lavoro che di soltio corrispondono ai piani dell'edificio - vedi: Preparazione della struttura dell'edificio. Il cambiamento del foglio di lavoro attivo è possibile tramite la lista di scelta nell'angolo inferiore della finestra della modifica grafica
- Tabella dati - i dati riguardanti una componente selezionata. Quando più componenti dello stesso tipo sono indicate, i dati comuni a tutte le componenti saranno visualizzate nella Tabella dati, il che permetterà di cambiare simultaneamente dati selezionati di componenti multiple.
- Strumenti principali - la barra contenente gli strumenti le funzioni principali come pure le icone degli elementi che servono alla modifica. Il contenuto della barra degli strumenti, inclusa la visibilità di tutte le sezioni e il fatto se tutte le icone saranno presentate dipendono dal contesto - dalla finestra attiva, e nell'ambito della finestra Modifica grafica - dalla linguetta attiva. Spostato il cursore su un'icona, il programma visualizzerà un'informazione sulla sua funzione, il che permette di venire a conoscienza di tutto il contenuto della barra degli strumenti.
- La sezione Modifica rende accessibili funzioni di modifica e a più livelli come le funzionalità annulla/ripeti.

- La sezione Vista e finestre del programma forniscono gli strumenti per manipolare la vista del progetto nella finestra Modifica grafica.
130 px- Zoom out e Zoom in per la vista del progetto, accanto alle icone di questa sezione, sono disponibili attraverso la rotellina del mouse.
- Sposta per la vista del progetto, accanto all'icona della sezione, è disponibile attraverso la rotellina del mouse tenuta pressa.
- Mostra tutto il progetto è disponibile, accanto all'icona, sotto il tasto F5.
- La sezione Modifica rende accessibili funzioni di modifica e a più livelli come le funzionalità annulla/ripeti.
Preparazione della struttura dell'edificio
La struttura dell'edificio costituisce la base su cui è possibile la creazione dell'impianto. L'edificio può essere composto di più piani. Per ogni piano il programma crea un foglio di disegno separato in quanto vista in piano su cui possono essere modificati gli elementi della struttura dell'edificio che appartengono ad un dato piano e gli elementi degli impianti progettati su questo piano. La modifica di particolari scopi si svolge su fogli separati (layer), mentre tutto l'edificio e tutti gli impianti ivi progettati creano un progetto integrato e unico.
Esistono alcuni metodi alternativi della preparazione della struttura dell'edificio per il progetto. La scelta di uno di essi dipende dai file sorgente nell'ambito della struttura e degli sfondi dei piani particolari che sono disponibili in un dato caso e dallo scopo del progetto da elaborare. Modalità d'importazione disponibili:
- Importazione di tutta la struttura dell'edificio - in caso d'importazione da un file gbXML, sarà importata sia la struttura del piano di cui nella sezione dei dati generali come pure gli elementi dell-edificio che creano gli sfondi di particolari piani.
- Importazione degli sfondi dei particolari piani - permette di importare vari formati, p.es.: DWG, DXF, PDF, BMP, JPG. Fatta l'importazione, bisogna introdurre nel layer Costruzione gli elementi della struttura dell'edificio, in base alla descrizione Modifica manuale della struttura, però le piantine caricate costituiscono lo sfondo che facilita e accelera la modifica della struttura.
Più informazioni su questo tema: Come importare un file - Modifica manuale della struttura - il programma permette di disegnare certi elementi dell struttura dell'edificio, in particolare le camere che saranno la base per la progettazione futura.
Anche in questo caso bisogna incominciare dalla definizione della struttura dell'edificio nella sezione Piani dei Dati generali. per indicare l'area di un locale bisogna scegliere il layer Costruzione e poi la funzione Locale disponibile sulla barra degli strumenti. In questo modo è possibile indicare le aree di tutti i locali.
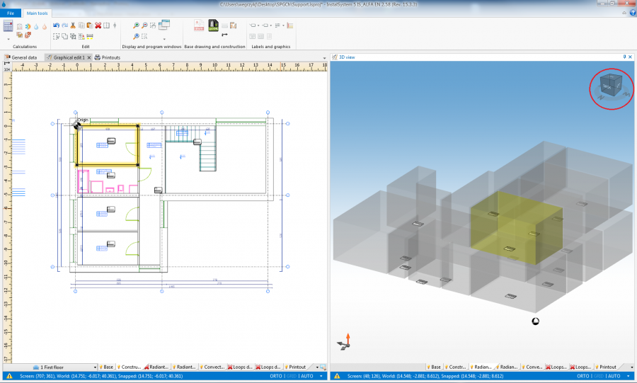
Verifica della correttezza della struttura dell'edificio
Introdotta la struttura dell'edificio, vale la pena verificare i dati immessi usando la vista 3D. La finestra Vista 3D è accessibile dalla lista delle finestre localizzate sulla barra degli strumenti. La vista 3D permette di fare giri in ogni direzione, il che permette di verificare dati usando viste da varie parti e sotto vari angoli. Per controllare la vista 3D bisogna usare il cubetto accessibile nell'angolo destro superiore della finestra oppure la combinazione del tasto ctrl e della rotellina del mouse ("scroll").
Più informazioni su questo tema: Navigazione della vista nell'editore grafico.
Edizione dell'impianto
Il modo di base dell'introduzione dei dati del sistema progettato nel pacchetto InstalSystem 5 è l'edizione grafica. La progettazione consiste nell'immettere oggetti - elementi dell'impianto - nel disegno e nel collegarli bene. Il lavoro si svolge sui disegni dei piani dell'edificio. Un'installazione creata così può essere modificata in qualsiasi modo, i suoi frammenti possono essere copiati come pure ci si possono svolgere altre operazioni.
- Il pacco offre molte funzioni che supportano l'edizione grafica; esse permettono di ridurre lo scopo e il tempo di lavoro manuale. Alcuni elementi possono essere introdotti in modo automatico oppure vengono generati dal programma. Allo stesso tempo è possibile introdurre e fare l'edizione di prodotti molteplici.
- L'applicazione possiede oggetti grafici predefiniti. Gli esempi sono: Tabella progetto, in cui possono essere digitati dati del progettista e che può essere usata nella stampata del progetto, oppure elementi interattivi come Tabella collettore e Etichette degli elementi. Dopo averli iscritti agli elementi concreti di un impianto, essi presenteranno dati attuali per questi elementi.
- Particolarmente facili e senza problemi sono vari tipi di modifiche di progetto - la loro ergonomia e facilità di fare calcoli del progetto modificato sono gran vantaggi dell'ambiente di lavoro InstalSystem 5.File:Graphical-edit-pl.png22. Edizione dell'impianto
Particolari informazioni sull' Edizione dell'impianto nell'ambito del tipo d'impianto progettato o calcoli intrapresi si trovano nella descrizione degli usi del programma - vedi:USI.
Verifica della correttezza della struttura dell'impianto
Prima del completamento dettagliato dei dati degli elementi, è opportuno controllare la correttezza della struttura dell'impianto e dei collegamenti degli elementi. Eventuali correzioni della struttura possono portare ai cambiamenti o anche alla rimozione di alcuni elementi; in tale situazione, il tempo sacrificato per il completamento dei dati sarebbe perso. In quest'ambito il pacchetto offre le soluzioni seguenti:
- Lo strumento che permette di controllare le connessioni degli elementi dell'impianto nel progetto è la funzione Verifica connessioni, essa è accessibile anche sotto la scorciatoia da tastiera Shift+F2.File:Check-connections-pl.png23. Funzione "Verifica connessioni"
- Lo strumento che permette di adoperare una verifica visuale della correttezza della struttura dell'impianto è, come nella verifica della struttura dell'edificio descritta sopra, la vista 3D del progetto. La vista 3D può essere accesa tutto il tempo, il che abilita la verifica della correttezza della struttura dell'impianto durante la sua edizione. In questo caso vale la pena lavorare con due File:Installation-project.png24. Struttura dell'impianto
Edizione dei dati degli elementi
Ogni elemento nel progetto possiede un set di dati, la cui edizione è possibile dopo la selezione di un dato elemento e attraverso la Tabella dati.Ciò riguarda sia gli elementi dell'ambito della struttura dell'edificio sia gli elementi di tutti gli impianti progettati come pure altri elementi che costituiscono gli oggetti del programma - ad es. l'oggetto "File grafico", menzionato durante la descrizione dell'importazione degli sfondi dei piani, oppure l'oggetto "Layout di stampata". Tabella dati può essere accesa / spenta attraverso la sua scelta dal menu Finestre che si trova sulla barra degli strumenti.
- La parte esenziale dei dati degli elementi nuovi sul disegno viene completata automaticamente. Ciò facilita ampiamente il lavoro col progetto. Lo scopo dei dati automaticamente proposti può essere diverso e dipende dal tipo di elementi e dagli altri fattori.
- Il meccanismo di base in quest'ambito è la propagazione dei Dati generali
- Alcuni dati vengono letti in base alla localizzazione e grandezza / forma dell'elemento sul disegno
- Nel caso degli elementi che sono legati ai dati dai cataloghi ed hanno un dato tipo di catalogo, molti dati particolari vengono letti dal catalogo.
- Qualsiasi dato predefinito può essere sempre cambiato con un altro valore. L'infomazione se lo stato attuale proviene dai "Dati generali" oppure è un altro tipo di dato predefinito o è un valore impostato dall'utente si presenta a forma di un'icona a destra del campo scelto nella Tabella dati. Un clic su questo simbolo cambia lo status del dato, in particolare permette di ritornare allo stato Predefinito.
- I dati di ogni elemento possono essere introdotte o modificate ad ogni momento del lavoro col progetto.
- Si può modificare i dati degli elementi appena introdotte nel progetto e per alcuni elementi tale procedimento sembra opportuno. Ciò riguarda in particolare gli elementi che sono indipendenti dagli altri elementi del disegno e che appaiono nel progetto in poca quantità.
- Per gli elementi che appaiono nel progetto in quantità alta, vale la pena distinguere la fase di modifica dei loro dati per sfruttare la possibilità della modifica multipla dei dati. Per raggiungere questo scopo, è necessario premere e mantenere premuto il tasto CTRL e poi cliccare tutti gli elementi da selezionare. Scelti elementi molteplici, i dati comuni per tutti gli elementi saranno presentati nella Tabella dati e ogni cambiamento risulterà nel cambiamento di tutti gli elementi indicati. Dunque, è particolarmente utile modificare insieme gli elementi dello stesso tipo, p.es. più locali.
Calcoli e diagnostica
Quanto ai calcoli, ci vengono fatte tutte le operazioni necessari per ottenere risultati completi: propagazione dei dati, scelta degli elementi, calcoli specialistici e modifiche grafiche automatiche. Vengono prese in considerazione tutti i dati aventi un influsso su un dato scopo del progetto: dati generali, dati dell'edificio, disegni dell'impianto progettato e i parametri usati per la costruzione degli elementi, letti dai cataloghi. Ciò significa che il programma garantisce automaticamente una completezza alta e la coesione dei dati e dei risultati. Tale approccio facilita ogni ritorno alle fasi precedenti dell'edizione - dopo il cambiamento dei dati scelti è possibile fare ricalcoli e ottenere risultati attuali e completi. La facilità dei ritorni ci dà un conforto alto e la velocità del lavoro nell'ambito dei calcoli di vari varianti del progetto ed esso riguarda le domande dell'investitore che possono cambiare oppure dei cambiamenti nella struttura dell'edificio introdotti durante la progettazione dell'impianto.
- Avvio dei calcoli - nella sezione Calcoli dela barra Strumenti principali sono disponibili degli strumenti che permettono di avviare e controllare lo scopo dei calcoli. Questi ultimi possono essere fatti per tutto il progetto oppure per scopi scelti.
100 px - Diagnostica ed elenco errori - all'inizio il programma fa una diagnosi della complettezza e correttezza dei dati. Errori essenziali nei dati causano la generazione dei comunicati sugli errori e l'interruzione dei calcoli. In caso di mancanza di errori gravi, i calcoli saranno eseguiti, invece l'elenco errori sarà completato coi comunicati della diagnostica. Questi avranno un'informazione sugli errori che non bloccano calcoli e avvertenze e suggerimenti legati al corso dei calcoli e ai risultati ottenuti. La finestra Errori è accessibile nel menu Vista e finestre del programma. Inizialmente tutti i comunicati sono visualizzate in grassetto. Facendo due clic su un dato comunicato, è possibile ritrovare elementi legate ad esso oppure dati in tutte le finestre aperte, p.es. in: Modifica grafica, Tabella dati, Risultati calcolo. Dopo la prima ricerca il comunicato è scritto con lettere normali, il che significa "controllato". Il menu pop-up disponibile con un click del tasto destro del mouse su un dato comunicato permette di visualizzare tutti gli elementi in cui è apparso lo stesso problema. La funzioneFiltri nella parte sinistra della finestra serve al controllo della visibilità di particolari gruppi dei comunicati.
- Errori
- sono comunicati d'importanza grandissima, scritti in maiuscole. errori critici causano l'interruzione dei calcoli e vanno rimossi. Esistono anche errori che non provocano l'interruzione dei calcoli, ma vanno analizzate e dovrebbero essere rimosse. - Avvertenze
- comunicati d'importanza minore rispetto agli errori, scritti in minuscole, non impediscono gli errori. Sono legati ai dati o risultati che sono probabilmente scorretti, perciò vale la pena controllare il contenuto dell avvertenze. - Suggerimenti
- sono comunicati aventi come scopo di ricordare o di trarre attenzione a vari dati o risultati.
- Errori
- Risultati calcolo - tutto il progetto può essere "calcolato" o "non calcolato" nel pacchetto InstalSystem. Il primo calcolo cambia lo stato del progetto in "calcolato". I calcoli hanno influsso sulle informazioni visibili in varie finestre dell'applicazione. L'importante è che i cambiamenti dopo il primo calcolo non cancellano i risultati di questo, ma disponbili sono i risutati degli ultimi calcoli. Il programma avverte di tale stato del progetto con un comunicato. Gli elementi più importanti dei risultati sono:
- Tabelle e resoconti accessibili nella finestra Risultati calcoloFile:Calculation-results.png27. Risultati calcolo
- Elementi visibili sul disegno del progetto nella finestra Modifica grafica, p.es. i risultati nelle etichette degli elementi oppure gli elementi visuali, disegnati o modificati durante le operazioni di modifica automatiche.
- Informazioni disponibili dopo l'eseguimento dei calcoli, ma non presentati in modo fisso, p.es. risultati particolari accessibili in Modifica grafica nelle finestre di suggerimenti possibili da visualizzare per la maggioranza degli elementi tenendo il cursore su un dato elemento.File:Pipe-run-results-hint.png28. Suggerimento di una tubazione
- Tabelle e resoconti accessibili nella finestra Risultati calcolo
Informazioni dettagliate sui calcoli e risultati nell'ambito di particolari tipi d'impianto si trovano nelle descrizioni degli usi del programma - vedi: USI.
Preparazione dei disegni all'importazione / esportazione
Introdotti tutti i cambiamenti richiesti al progetto e finiti i calcoli, è possibile metterci elementi che completano le informazioni fornite in quanto stampate. Si tratta degli elementi di carattere informativo che non hanno influsso sul corso dei calcoli. Si raccomanda di metterli solamente a questa fase, poiché un lavoro iterativo col progetto nell'ambito delle fasi precedenti può causare la necessità di modifiche anche in quest'ambito. Perciò, la loro introduzione nell'ultima fase del lavoro può essere la più effettiva.
Una descrizione dettagliata su che tipi di elementi sono accessibili nell'ambito di particolari tipi d'impianto si trova nelle descrizioni degli usi del programma - vedi: USI.
- Un esempio è costituito da Etichette degli elementi accessibili sulla barra Strumenti principali nella sezione Descrizioni e grafica. L'etichetta viene inserita con un'icona giusta dalla barra degli strumenti e con un clic sull'elemento del disegno per cui l'etichetta deve apparire. DOpo l'indicazione dell'elemento che possiede un'etichetta, esiste la possibilità di scegliere lo stile dell'etichetta nellaTabella dati.File:Labels-pl.png29. Etichetta dell'elemento
Gli stili delle etichette possono essere configurate - vedi Punto 5 Impostazione aspetto visuale degli elementi e parametri di modifica nell'ambito dei Dati generali. Il programma permette di creare e salvare vari stili propri delle etichette con varie impostazioni.
Esportazione / importazione dei risultati e dei disegni
I risultati tabelarici e i disegni possono essere stampati con facilità o esportati in uno dei formati supportati dal programma.
- Stampa delle tabelle e dei resoconti - è possibile creare e salvare le proprioe composizioni delle stampe e lo stampare dei risultati dei calcoli direttamente con una stampante oppure si può fare un'esportazione in un formato scelto.
- Stampa dei disegni - è possibile definire il layout grafico delle pagine di stampata e lo stampar dei disegni direttamente con una stampante oppure si può fare un'esportazione in un formato scelto.
Più informazioni su questo tema: Esportazione / stampa dei risultati e dei disegni.



